Create Your First Project
Start adding your projects to your portfolio. Click on "Manage Projects" to get started
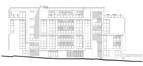
Modern Elegance in a Boutique Residence
Project type
Project
Date
2020
Location
EU
This six-story residential clubhouse is conceived as a highly exclusive dwelling for just two families, blending architectural refinement with privacy and comfort. Its design is characterized by layered terraces, generous glazing, and a façade composition of dark natural stone, timber detailing, and light concrete frames.
The project prioritizes spatial generosity and individuality, with each residence enjoying expansive open-plan interiors, private balconies, and access to rooftop leisure areas. Greenery is integrated across terraces and façades, softening the building’s geometry and reinforcing its connection to the surrounding landscape.
At the base, a stone-clad plinth discreetly accommodates underground parking, ensuring that all vehicular functions remain hidden while the landscaped frontage emphasizes a welcoming residential character.
The clubhouse stands as a contemporary statement of discreet luxury — a tailored architectural solution where exclusivity, craftsmanship, and modern living converge into a singular residential experience.









